
このブログについて
tomoarch.com は、建築・空間表現を軸に思考や実験を行っていた時期の記録です。
現在の制作・実装ベースの活動は Tomo Design Studio にて公開しています。
昨日までVRゴーグルをかぶって遊んでいたのですが、突然思い立ってREVITを学びたいと思い始めました。善は急げ、という事でautodeskの公式ウェブサイトからREVITの30日間体験版を無料でダウンロードしてみました。
無料ダウンロードをするためにはメールアドレス、登録する住所と電話番号が必要です。特に電話番号は認証コードが送られてくるので、必ず入力する必要があります。以前2015年版をインストールしたことがあるのですが、あまり使わないで30日が過ぎてしまい、それはアンインストールしました。今回同じアカウントを使って2度目のダウンロードですが、今回はバージョンが2019という事で違うバージョンだから大丈夫なのか、無事インストールされています。これは、アンインストールすれば、繰り返し30日の無料ダウンロード版を使用可能なのか気になる所です。私は2015版に加え2019年版をダウンロードできたので、何度でもできたらいいなぁと思っています。
ダウンロードとインストールが始まると、かなりデータ通信が重くなるので覚悟してください。私は3時間弱ぐらいインストールに時間がかかりました。環境によると思います。途中150/6.45GB残り時間2:56分の所でインストールがストップしてしまいましたが、1時間ぐらい放っておいたら勝手に進みました。インストールは気長に待ちましょう。インストールが終わってからもう一度セキュリティーコードが電話に送られてきます。それを打ち込んでインストール終了です。
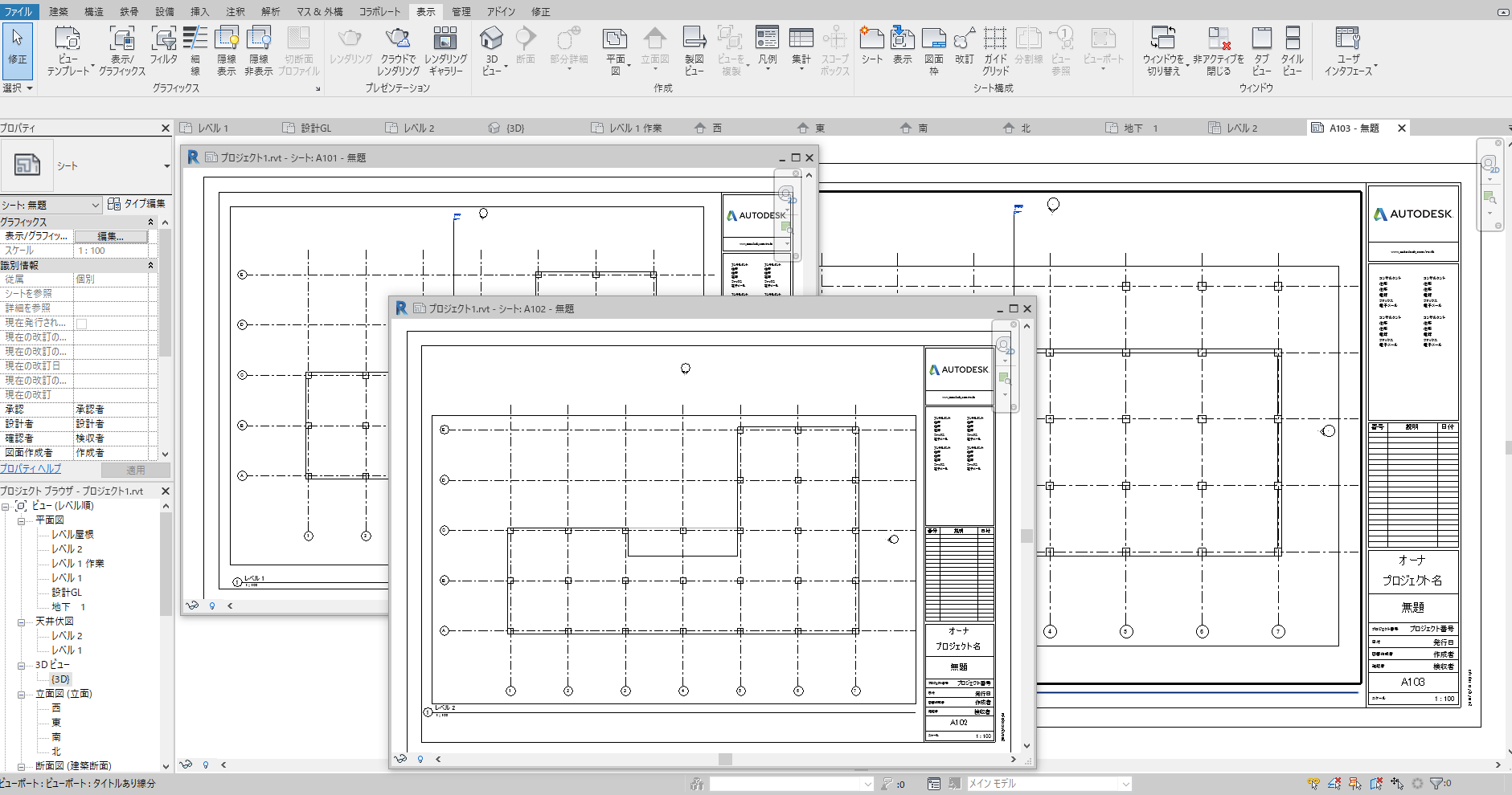
私は業務で若干使ったことがあるので大体の使い方は予想がついているのですが、かなり前の話なので、どうせなら最初から学びなおそうと思い、Lynda.comでチュートリアルを見ながら勉強をしようと思います。とりあえず、通り真、柱、床を置いてみました。
通り真と柱を置いてみた図

床を入れてみた図

3Dビュー

早速地下の二重外壁の作り方を忘れてしまい、ググってみたのですがUnityと違って全然参考になるウェブサイトが少ないです。下の二つのリンクで何となくそれらしい壁ファミリを作りましたが、かなりうさんくさいので、もう一度学びなおします。
Revitで複合壁を作る
複層構造のレイヤへの機能の適用について
とりあえず、何となくシートに並べたところで、Lynda.comにチュートリアルを探しに行きました。

すると、なんてことでしょうか、Lynda.comはLinkedin learningに変わってしまっていてかつ、有料になっていました。最初の30日のみ無料です。こうなったら最初の30日でカタをつけてやる!!と意気込んで早速クレカを突っ込んできました。30日経過すると自動で引き落としが始まるようです。

クレカの情報を入れ終わると上の画面になります。言語が日本語になっていると数百程度の日本語のチュートリアルしかヒットしませんが、保存済みのコースの所から、言語を英語にすると、下記のフッターから英語を選択できます。英語で検索すると、数千の結構マニアックなチュートリアルがあるのでお勧めです。例えば、REVITのC#プラグインの作り方なんていうクラスがあるので、現状全く歯が立ちませんが、将来的にはとても期待できます。

コース内容の一例
Revit: Creating C# Plugins
Learning Objectives:
Setting up the Revit API in Visual Studio
Creating commands
Compiling and debugging code
Creating elements
Editing element parameters
Editing element geometry
Automating element-related tasks
Creating external applications to execute plugins
これから色々学んでなるべくフィードバックできるように頑張ります。ちなみにUnrealEngineも落として少し触り始めました。かなり手を広げすぎている感があるので自重したいのですが、、、多動力より完了主義を心掛けたいと思います。

※本記事は当時の思考・試行錯誤の記録です。
現在の制作・プロジェクトについては Tomo Design Studio をご覧ください。









